滨江熙岸为汕头市中信滨河房地产有限公司开发建设,项目位于汕头市护堤路西侧原汕头轻工机械厂地块。项目场址东临护堤路,南为汕头市韩江机械厂,西为汕头市翠堤湾住宅小区,北隔小区路为翠堤湾住宅小区。 项目小区规划实用地面积为44410.5平方米,总建筑面积约201992平方米,计容建筑面积约163388平方米,计划建设9栋18~29层商住楼,以及1栋4层的卫生站、文化站及配套设施综合楼和以及1栋3层的幼儿园。设计居住户数为1253户,居住总人口约4135人。项目小区建筑密度为24%,综合容积率为3.68,绿地率为36%。项目配套公共设施包括地下停车库(停车位共1040个)、商铺、会所、文化站、卫生站、幼儿园、游泳池、配电房、备用柴油发电机房、加压水泵房、生活和消防水池、垃圾收集间等。
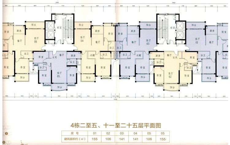
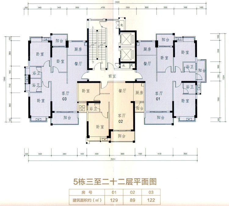
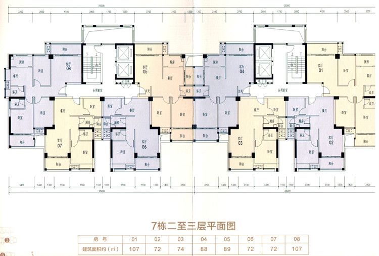
滨江花园拟建18~29层的住宅楼。 各幢住宅楼户型分布: 1幢:86.61-129.19平,6梯7户; 2幢:86.52-128.53平,4梯6户; 3幢:90.48-142.3平,4梯5户; 4幢:105.57-153.77平,4梯6户; 5幢:90.36-127.05平,2梯3户; 6幢:135.26-143.56平,4梯4户; 7幢:70.72-105.83平,4梯8户; 8幢:90.25-140.5平,6梯7户; 9幢:70.72-125.85平,6梯11户; 户型配比:二房占30.15%,三房占65%,四房占4.85%                                  |