首页 | 行业新闻 | 楼盘频道 | 家居时尚 | 中介之窗 | 政策法规 | 咨询解答 | 供求信息 | 网络经纪人     
                 价格: 至    面积: 至    楼层: 至    
热点查询:阳光海岸 香域水岸 柏嘉半岛 海逸东方 锦逸荣庭 嘉顿小镇 嘉泰雅园 天华美地
 返回首页
   选择你所需的工具
·税费计算器
·购房能力评估
·等额本息还款法
·等额本金还款法
·提前还款计算器
·公积金贷款额度年限计算器




山海豪庭
区域    :龙湖区 开发商  :汕头市合群房地产开发有限公司
占地面积:3.7234 销售许可:汕房预字(2013)第003号
建筑面积:18.2351 售楼地址:汕头市龙湖区泰星路5号
开工时间:2011-06-01 售楼热线:
竣工时间:2014-04-01 状态    :在售
开盘时间:2013-04-06 传真    :
入住时间:2014-06-30 联系人  :
容积率  :4.5 E-Mail  :
绿化率  :30 公交线路:乘坐15、19、40路公交车于“山海豪庭”站即可到达
房屋类型:高层
起价    :
最高价  :
均价    :
详细地址:广东省汕头市龙湖区泰星路5号
交通状况:
楼盘简介:

  汕头市合群房地产开发有限公司拟于汕头市新津启动片区建设山海豪庭商住楼项目,预计总投资为人民币35115万元。项目规划总用地面积为37234.1平方米,总建筑面积为182351平方米,计划建设6栋22至32层的商住楼。小区配套公共设施包括地下停车库、配电房、备用柴油发电机房、加压水泵房、生活和消防水池、垃圾收集间、游泳池等。项目计划于2011年6月施工建设,预计于2013年6月竣工。

 

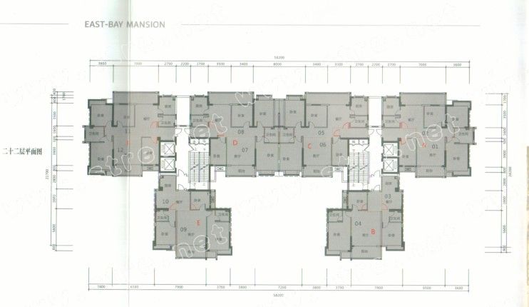
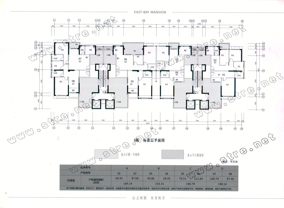
山海豪庭相关图片