首页
|
新楼盘
|
出售房源
|
出租房源
|
政策法规
|
咨询解答
|
购房工具
|
供求信息
|
网络经纪人
|
登录
方式不限
我要买房
我要租房
区域不限
升平区
龙湖区
金平区
潮南区
潮阳区
澄海区
河浦区
濠江区
类型不限
住宅
铺面
经营
车位
车库
厂房
仓库
别墅
写字楼
高层住宅
多层办公
高层办公
住宅.铺面
住宅.办公
住宅.仓库
办公.仓库
地皮.空地
性质不限
商品房
房改手续
房改一次
房改二次
一九手续
二八手续
二二六
三七手续
三三四
合建手续
合同手续
公产手续
农民手续
合同发票
拍卖手续
私建
私产
拆赔
价格:
至
面积:
至
楼层:
至
汕头房产网热点查询:
星湖城
尚海阳光
金紫世家
万豪南湾
龙腾嘉园
中海东海岸
大悦城
香域水岸
香域春天
香樟美地
悦泰春天
壹品湾
星汇国际
星湖豪景
新星家园
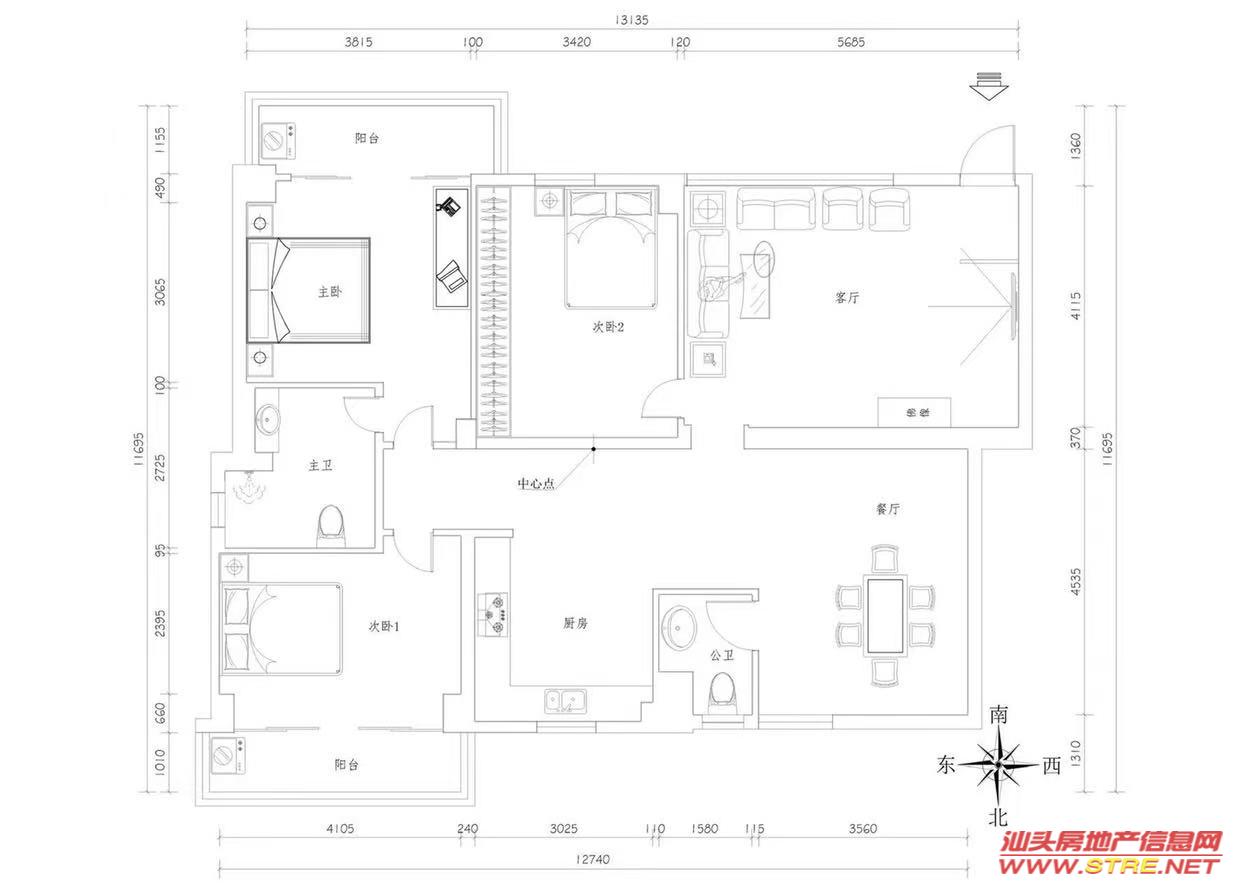
建信大厦 信息详细内容
物业名称
建信大厦
物业编号
2370613BB2972
物业地址
建信大厦
物业面积
160M
2
用 途
高层住宅
层 次
13
朝 向
南北
套 型
3房
方 式
出售
性 质
商品房
价 格
5625元/m2
总 价
9OOOOO元
装修情况
新装修
自编码
其他情况
各付
备 注
房源提供
国友房产
日 期
2025-10-09
客服电话
13322719909
建信大厦 相关图片
图片
图片
图片
图片
图片
图片
图片
图片
图片
图片
建信大厦 地图位置
登陆全市房源 代理私人借款
给发布 建信大厦 的商家留言
留言主题:
您的大名:
电子信箱:
联系电话:
您是来自:
请选择
汕头
潮州
潮阳
揭阳
广东
北京
天津
上海
重庆
河北
河南
黑龙江
吉林
辽宁
内蒙古
海南
山西
陕西
山东
江苏
浙江
安徽
江西
福建
甘肃
宁夏
青海
新疆
湖北
湖南
广西
四川
贵州
云南
西藏
香港
澳门
台湾
其它
留言内容:
更多房源
推荐房源
相近面积
星湖嘉景 158M
2
10700元/m2
香樟美地 160M
2
11000元/m2
龙翔商业大厦 162M
2
3999元/m2
观海居--望一线海.. 161.08M
2
18600元/m2
御海阳光 160M
2
14200元/m2
御海阳光 160M
2
14200元/m2
逸景蓝湾--带景观.. 158M
2
14200元/m2
金涛庄东区 164M
2
7000元/m2
相近价格
东厦花园一期 139M
2
6500元/m2
丹阳庄国新花园 144.11M
2
6204元/m2
杜鹃苑 98.48M
2
9265元/m2
碧霞庄北区 117M
2
7692元/m2
丽水庄中区 228.4M
2
3947元/m2
庐山花园 117M
2
7692元/m2
苏宁广场 75M
2
12000元/m2
丹霞庄西区 85.53M
2
10500元/m2
相近位置
建信大厦 119.24M
2
7798元/m2
华美庄建信大厦 120M
2
8833元/m2
华美庄建信大厦【金.. 127M
2
8897元/m2
建信大厦 280M
2
6000元/m2
建信大厦 280M
2
6000元/m2
华美庄建信大厦【7.. 127M
2
8897元/m2
建信大厦*业主朋友* 120M
2
7733元/m2
建信大厦 160M
2
5312元/m2
ICP备案/许可证号:粤B2-20040795号-1
汕头房地产信息网版权所有 2004-2024
粤公网安备 44050702000082号
增值电信经营许可证:粤B2-20040795 提供第一手汕头房产信息 如有任何问题请致电:0754-88860029或Email:service@stre.net